Besko

Konštrukcia bowlingových dráh navrhnutá na mieru

Konštrukcia dráh 7

Spoľahlivá konštrukcia – základ bezproblémového bowlingu

Presné priestorové riešenie

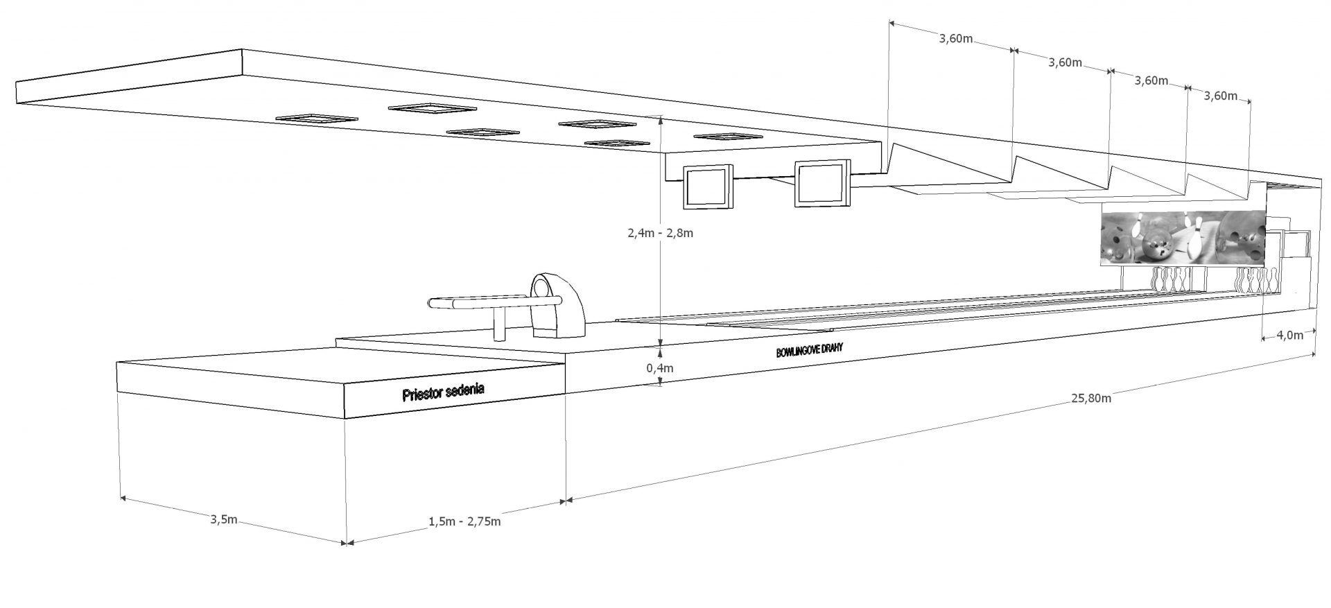
Každú bowlingovú dráhu navrhujeme podľa reálnych možností vášho objektu. Pre dve dráhy je potrebný minimálny priestor 3,5 × 26 m bez zázemia pre hráčov.

Stabilná nosná konštrukcia

Nosnú konštrukciu vyrábame z dreva a veľkoplošných materiálov, uložených na odhlučnených vyrovnávacích prvkoch pre tichú prevádzku.

Flexibilita a odhlučnenie

Výška nosnej konštrukcie pre bowlingovu dráhu  je 170–450 mm. Prispôsobujeme ju návratu gúľ a priestorových možnosti budovy.

Premyslená konštrukcia, ktorá funguje v praxi

Konštrukcia dráh 9

Technický základ bez kompromisov

Konštrukcia bowlingových dráh je navrhnutá tak, aby zabezpečila presnú hru, dlhú životnosť a minimálnu hlučnosť aj pri intenzívnej prevádzke.

Navrhnite si bowling presne pre váš priestor
Konštrukcia dráh 11

Tichá a stabilná prevádzka

V prípade zvýšených nárokov na elimináciu hluku a vibrácií je možné celé teleso dráh oddeliť od stavebnej konštrukcie objektu.

Konzultujte technické riešenie s odborníkmi

Začnite s bowlingom
na pevných základoch

Ak plánujete výstavbu alebo rekonštrukciu bowlingových dráh, pomôžeme vám navrhnúť technické riešenie presne podľa vášho priestoru a prevádzkových nárokov. Dlhodobá spokojnosť a bezproblémová prevádzka je základom úspešného bowlingového centra.

Postavíme bowling na mieru!

Zverte výrobu, montáž a servis do rúk odborníkov.

Odoberajte novinky, zľavy, akcie a zistíte zadarmo užitočné rady a šikovné nápady